Description
IMMO DOYEN vous propose en exclusivité cette maison de caractère 3 façades, idéalement située à Pétange, Rue Robert Schuman. Développant ± 174 m² habitables (rez-de-chaussée + 1er étage), elle allie cachet, confort et potentiel.
Rez-de-chaussée
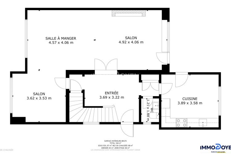
Un hall d’entrée élégant, doté d’un escalier en pierre, distribue les pièces de vie : double salon lumineux, salle à manger conviviale et cuisine récente entièrement équipée, complétés par un WC séparé. Les hauteurs sous plafond et les finitions nobles confèrent à l’ensemble une atmosphère raffinée.
1er étage
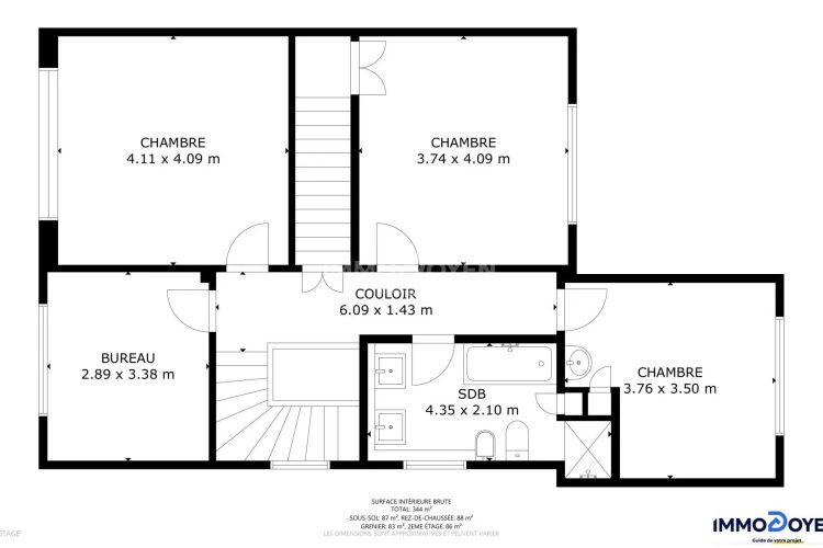
L’étage comprend quatre chambres généreuses ainsi qu’une vaste salle de bain familiale avec baignoire, douche et double vasque, offrant un confort optimal à toute la famille.
Espaces complémentaires
Grenier aménageable de ± 83 m², idéal pour créer une suite parentale ou des espaces supplémentaires.
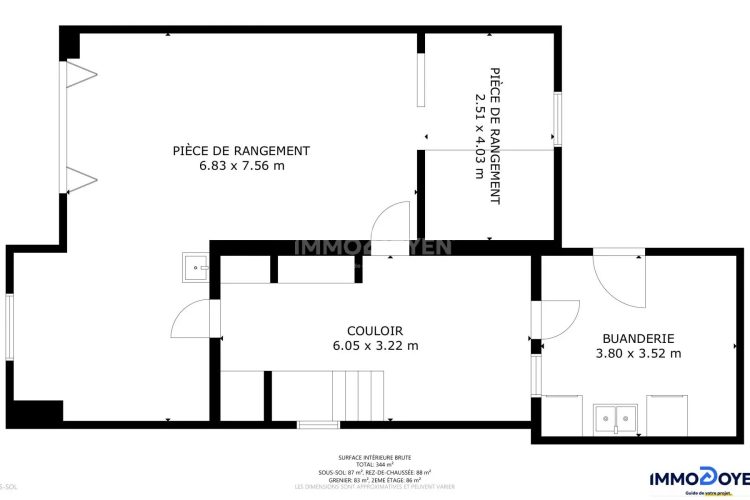
Sous-sol complet avec buanderie, caves et garage.
Extérieurs
La maison bénéficie d’un passage latéral, d’un jardin privatif et d’une terrasse équipée d’une banne solaire, garantissant des moments agréables en extérieur.
Atouts majeurs
174 m² habitables + grenier aménageable
Maison 3 façades avec garage
4 chambres
Cuisine récente et équipée
Jardin et terrasse
Quartier recherché à Pétange, à proximité immédiate des commerces, écoles et transports
Une opportunité rare sur le marché : une demeure familiale offrant volumes, confort et potentiel d’évolution, au cœur d’un secteur prisé de Pétange.
Les informations fournies sont à titre indicatif et non contractuel. Elles ne dispensent pas les intéressés de procéder à leurs propres vérifications.
Num CPE : P.20250921.4779.16.1.2
Performance énergétique I
Isolation thermique I
Visites sur demande au:
=> +352/661.33.00.55
=> via email: contact@immodoyen.com
=> www.immodoyen.com
Rez-de-chaussée
Un hall d’entrée élégant, doté d’un escalier en pierre, distribue les pièces de vie : double salon lumineux, salle à manger conviviale et cuisine récente entièrement équipée, complétés par un WC séparé. Les hauteurs sous plafond et les finitions nobles confèrent à l’ensemble une atmosphère raffinée.
1er étage
L’étage comprend quatre chambres généreuses ainsi qu’une vaste salle de bain familiale avec baignoire, douche et double vasque, offrant un confort optimal à toute la famille.
Espaces complémentaires
Grenier aménageable de ± 83 m², idéal pour créer une suite parentale ou des espaces supplémentaires.
Sous-sol complet avec buanderie, caves et garage.
Extérieurs
La maison bénéficie d’un passage latéral, d’un jardin privatif et d’une terrasse équipée d’une banne solaire, garantissant des moments agréables en extérieur.
Atouts majeurs
174 m² habitables + grenier aménageable
Maison 3 façades avec garage
4 chambres
Cuisine récente et équipée
Jardin et terrasse
Quartier recherché à Pétange, à proximité immédiate des commerces, écoles et transports
Une opportunité rare sur le marché : une demeure familiale offrant volumes, confort et potentiel d’évolution, au cœur d’un secteur prisé de Pétange.
Les informations fournies sont à titre indicatif et non contractuel. Elles ne dispensent pas les intéressés de procéder à leurs propres vérifications.
Num CPE : P.20250921.4779.16.1.2
Performance énergétique I
Isolation thermique I
Visites sur demande au:
=> +352/661.33.00.55
=> via email: contact@immodoyen.com
=> www.immodoyen.com

