Description
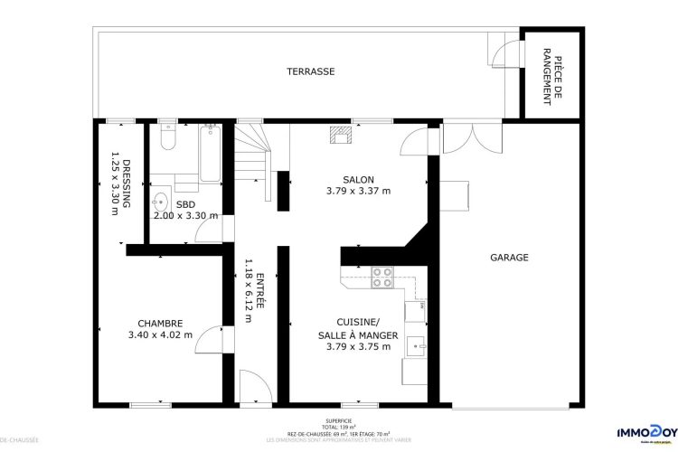
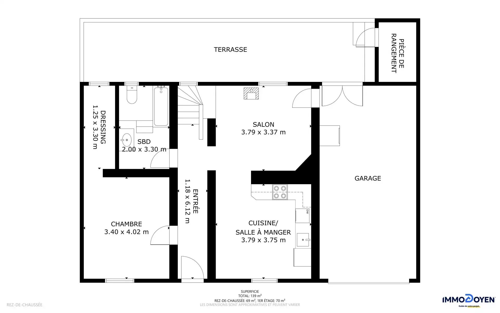
ImmoDoyen a le plaisir de vous faire découvrir dans un quartier calme, à proximité immédiate des écoles et de la gare cette maison familiale de 139 m², bâtie sur un terrain de 1,50 ares.
Elle offre 5 chambres spacieuses : 11,7 m², 10,15 m², 14 m², 15,8 m² à l’étage, et une chambre de 13,6 m² au rez-de-chaussée, idéale pour une suite parentale, avec son propre dressing de 4 m².
La salle de bain est équipée d’une baignoire, lavabo et WC. Le salon avec cheminée apporte une atmosphère chaleureuse, et la cuisine équipée est prête à l’emploi.
À l’extérieur, une agréable terrasse vous permettra de profiter des beaux jours. Un garage ainsi qu’un grenier viennent compléter ce bien
PEB D
Code PEB unique : 20160408007025
Consommation spécifique d'énergie primaire : 276 kWh/m²·an
Consommation totale d'énergie primaire : 48.268 kWh/an
Les informations fournies par l’agence ont un caractère indicatif et non contractuel. Elles n'engagent pas la responsabilité de l’agence et ne dispensent pas les clients ou visiteurs de procéder à leurs propres vérifications.
Visites sur demande au:
=> +352/661.33.00.55
=> immodoyen.com
=> contact@immodoyen.com
IPI:518959
Elle offre 5 chambres spacieuses : 11,7 m², 10,15 m², 14 m², 15,8 m² à l’étage, et une chambre de 13,6 m² au rez-de-chaussée, idéale pour une suite parentale, avec son propre dressing de 4 m².
La salle de bain est équipée d’une baignoire, lavabo et WC. Le salon avec cheminée apporte une atmosphère chaleureuse, et la cuisine équipée est prête à l’emploi.
À l’extérieur, une agréable terrasse vous permettra de profiter des beaux jours. Un garage ainsi qu’un grenier viennent compléter ce bien
PEB D
Code PEB unique : 20160408007025
Consommation spécifique d'énergie primaire : 276 kWh/m²·an
Consommation totale d'énergie primaire : 48.268 kWh/an
Les informations fournies par l’agence ont un caractère indicatif et non contractuel. Elles n'engagent pas la responsabilité de l’agence et ne dispensent pas les clients ou visiteurs de procéder à leurs propres vérifications.
Visites sur demande au:
=> +352/661.33.00.55
=> immodoyen.com
=> contact@immodoyen.com
IPI:518959




